Home
Projets
Extensions-Rénovations
Rénovations-Restructurations
Maisons individuelles
Bureaux
Equipements Publics
Concours d’idées
L’agence
Actus & publications
Contact
Home
Projets
Extensions-Rénovations
Rénovations-Restructurations
Maisons individuelles
Bureaux
Equipements Publics
Concours d’idées
L’agence
Actus & publications
Contact
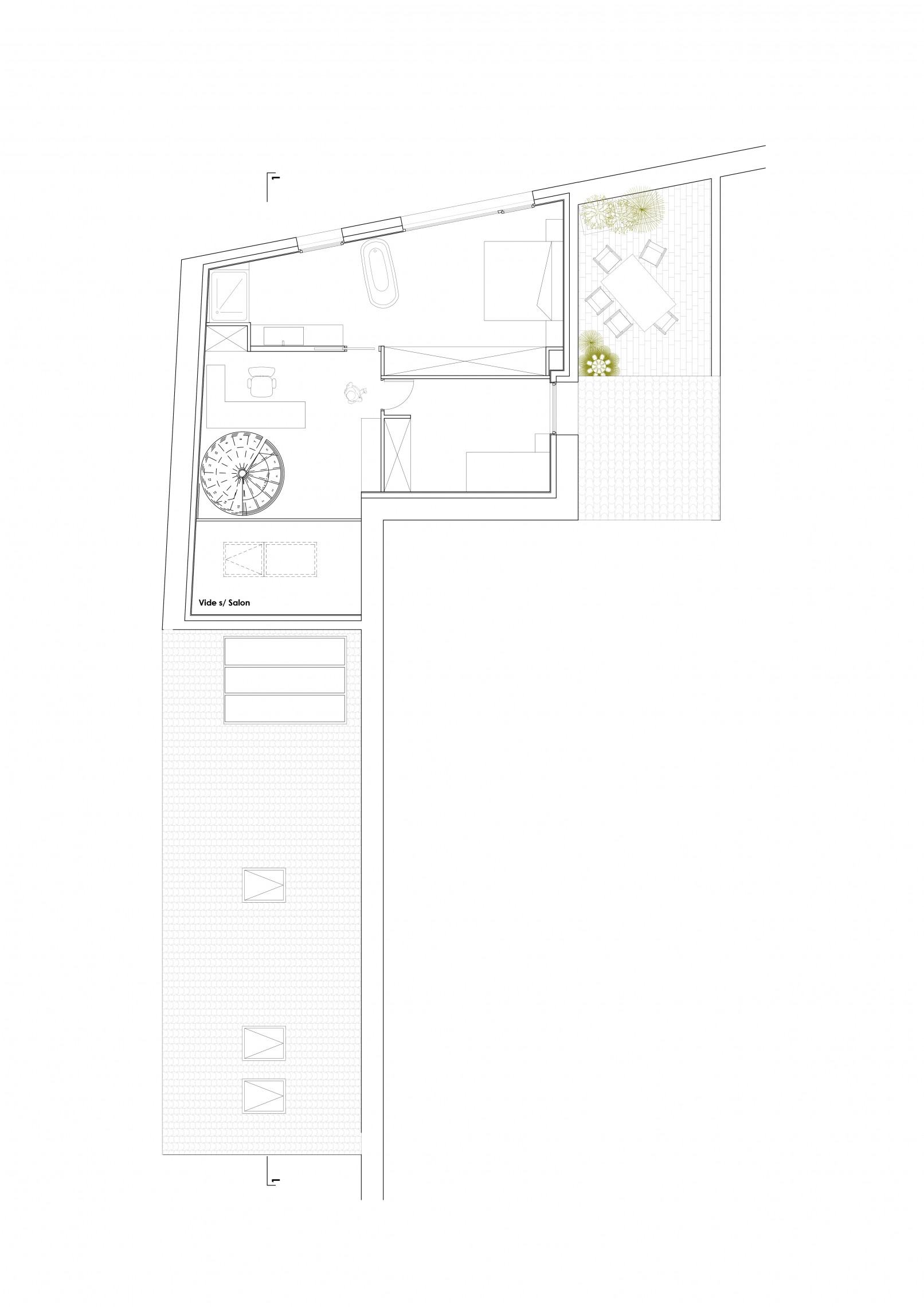
Rénovation SOU
La Châtaigneraie (85)
DESCRIPTION
Lieu- La Châtaigneraie
Maître d'Ouvrage- Privé
Coût des Travaux- N.C.
Surface- 230m²
Calendrier- Chantier en cours
4
Share
Facebook
Pinterest
Previous project
Next project
error:
Content is protected !!