Extension de l’Ecole René Guy Cadou à Sainte Reine de Bretagne
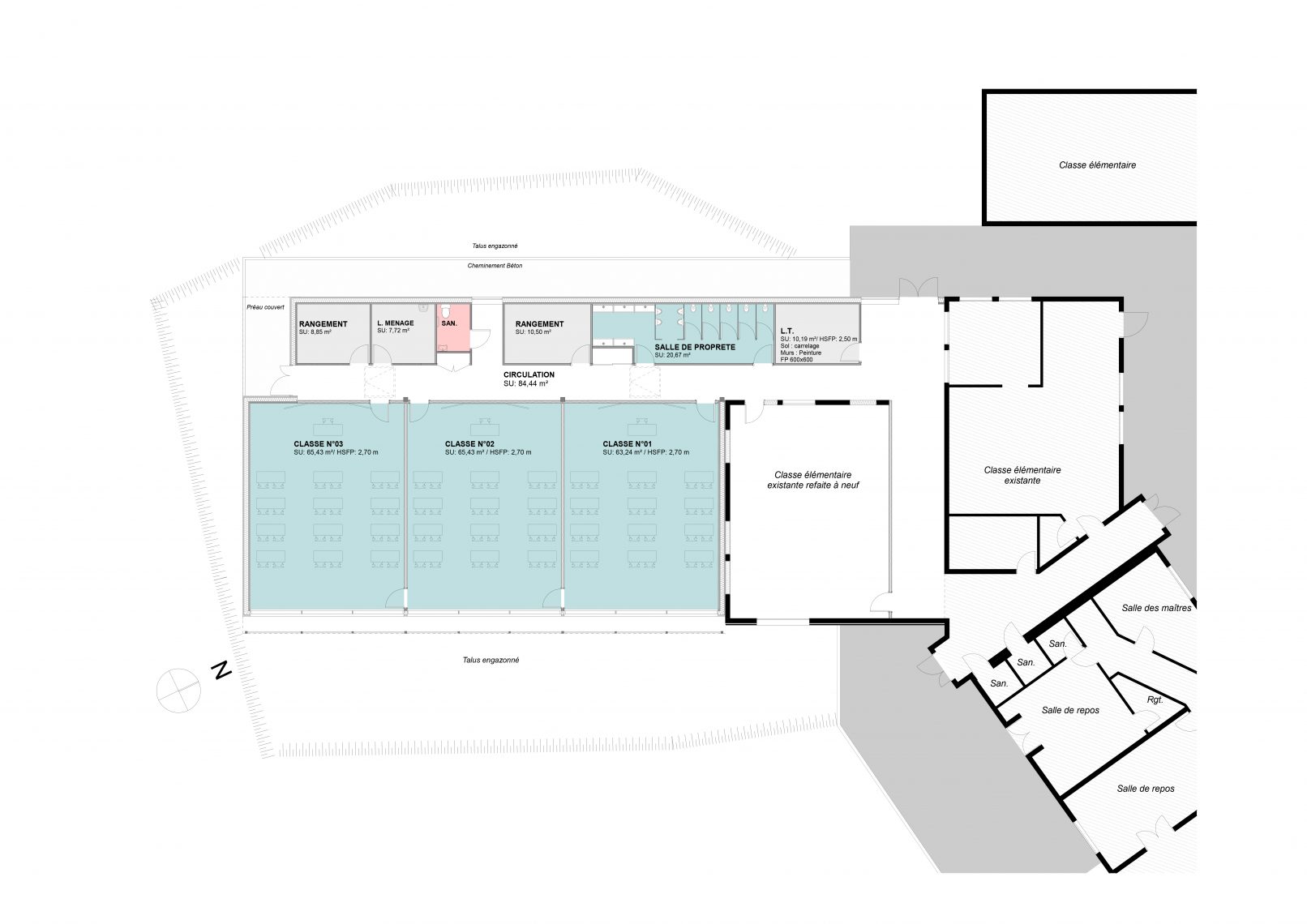
L’école maternelle René Guy Cadou est une succession d’extensions réalisées depuis les années 2000. Cette troisième extension a pour but d’augmenter la capacité d’accueil de l’école sur une commune en pleine expansion.
Ce projet également réalisé sur un principe de préfabrication avec une ossature bois réalisée en atelier et un assemblage sur site.
La future extension reprend la volumétrie des bâtiments existants. L’architecture proposée se veut simple et cohérente avec l’ensemble bâti.
Les détails se concentrent sur la façade Ouest entièrement vitrée, devant laquelle sera réalisée une structure de brise soleil fixe.
DESCRIPTION
- Maîtrise d'oeuvre: LM architecte + MKh. architecte (mandataire)
- Programme- Extension et Rénovation partielle de l'Ecole René Guy Cadou
- Lieu- St Reine de Bretagne - Loire Atlantique
- Maître d'Ouvrage- Commune de Sainte Reine de Bretagne
- Coût des Travaux: 670 000€ HT
- Surface Plancher- 362m²
- Calendrier- Chantier en cours





